Entrammes
Ventes de parcelles constructibles à Entrammes
Venez vivre à Entrammes en Mayenne !
Découvrez nos parcelles de construction dans un cadre naturel et dynamique, à proximité immédiate de Laval. Une opportunité idéale pour bâtir votre projet de vie dans un village alliant calme et accessibilité.
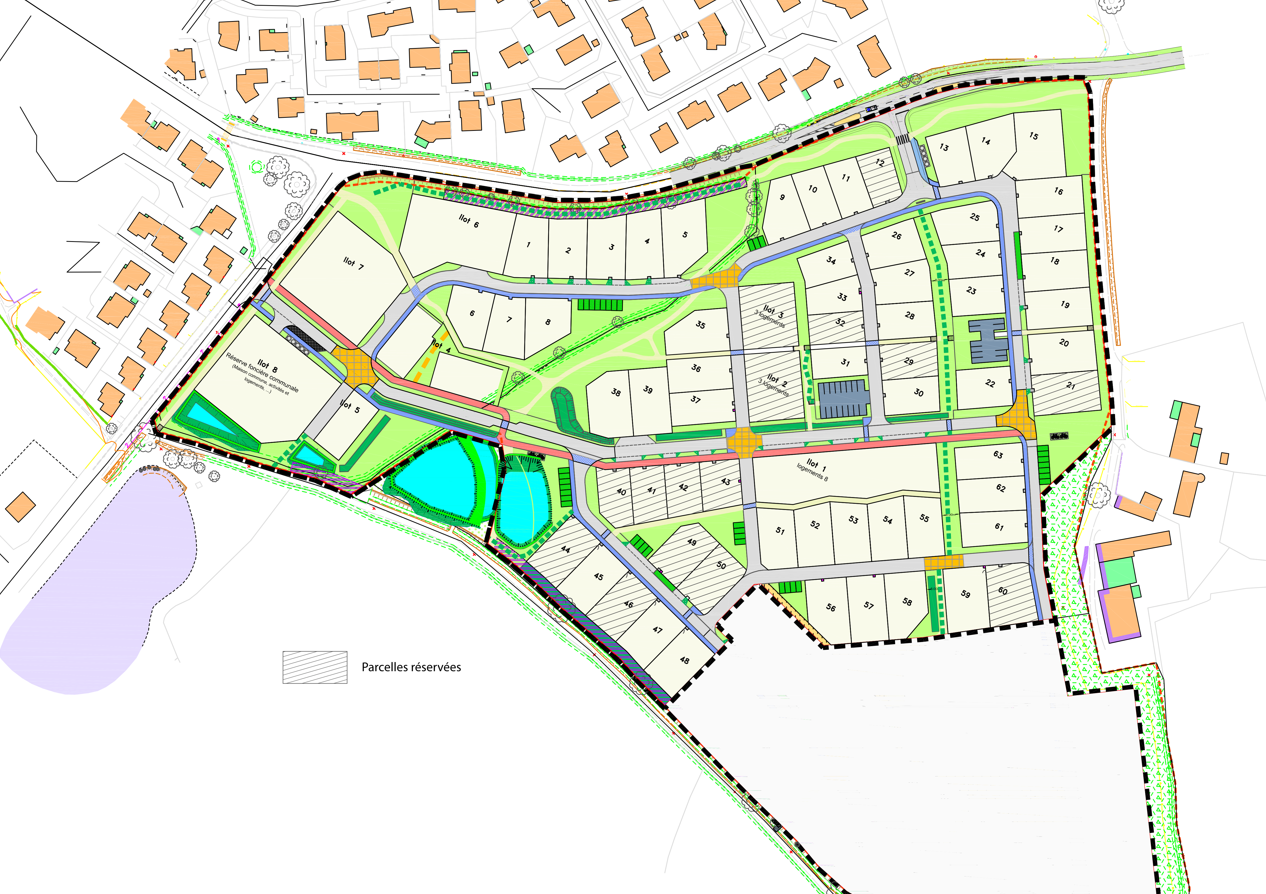
Les parcelles en ventes à Entrammes
Découvrez nos 130 parcelles constructibles sur la commune d’Entrammes, à 10min de Laval en Mayenne. De superbes parcelles au coeur d’un lotissement communal qui n’attendent plus que vous !

Surfaces
De 300 à 550m2

Prix
120€TTC du mètre carré

Professions de santé
Une maison de santé pluridisciplinaire

Localisation
Sur l'axe Laval - Château-Gontier- Angers
Découvrez la commune d'Entrammes, parfaite pour une vie de famille !
Explorez la richesse de notre commune : vie locale, associations dynamiques, et activités variées pour toute la famille. Tout un cadre de vie idéal à découvrir dès maintenant.
Contactez-nous !
1 rue Rosendahl,
53260 Entrammes
02 43 98 00 25